Flexspace
fleXspace at Mobilease Modular Space
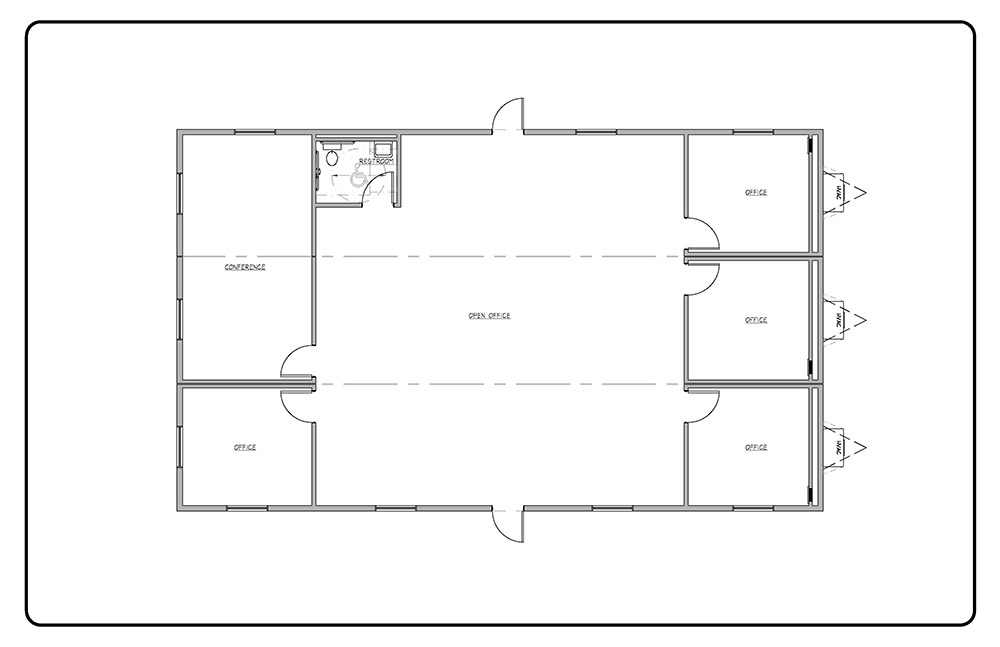
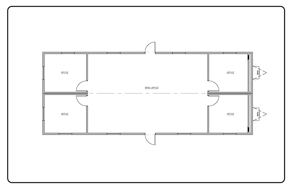
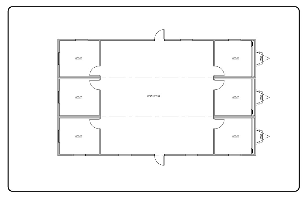
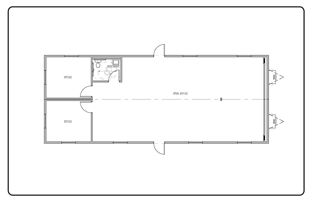
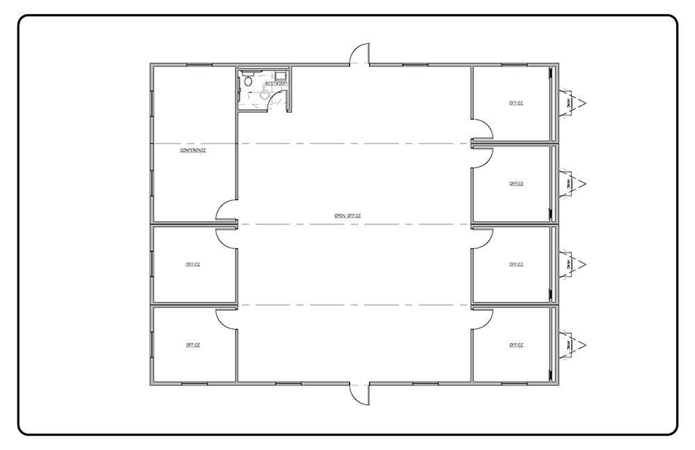
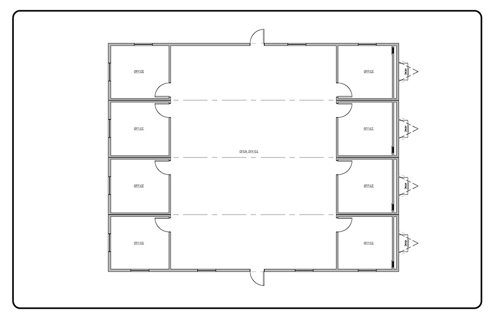
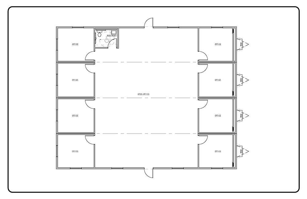
With easy to customize sizes and floor plans, Mobilease will provide contractors with a comfortable work environment to help achieve project goals and timelines without ever leaving a job site. A Section Modular Office can come in multiple sizes ranging from 24×60 to 48×60 with ADA mens’ and womens’ bathrooms, plan rooms, offices, conference rooms and break rooms that will make any employee feel like they are working from their headquarters.
Contact Us

fleXspace Photos
fleXspace Floor Plans
Build Smarter With Modular Construction
Customize Your Design With Mobilease Modular Space
Contact Us


































