Mobile Office Trailers
Mobile Office Trailers for Businesses in the Mid-Atlantic Region
Time spent out in the field doesn’t mean sacrificing your productivity or professionalism. Mobilease Modular Space delivers state-of-the-art modular office building solutions that meet the demands of contractors and field workers, including modular office building solutions that meet the demands of contractors and field workers. With our cutting-edge designs, you’ll gain a workspace that supports collaboration, focus, and streamlined operations wherever your work takes you.
Our team proudly provides purpose-driven spaces prepped and ready upon arrival so you can focus on pushing your projects forward. When quality matters, trust us to equip your business with the perfect on-site workspace.
A Reconditioning Process That Reinvents Mobile Workspaces
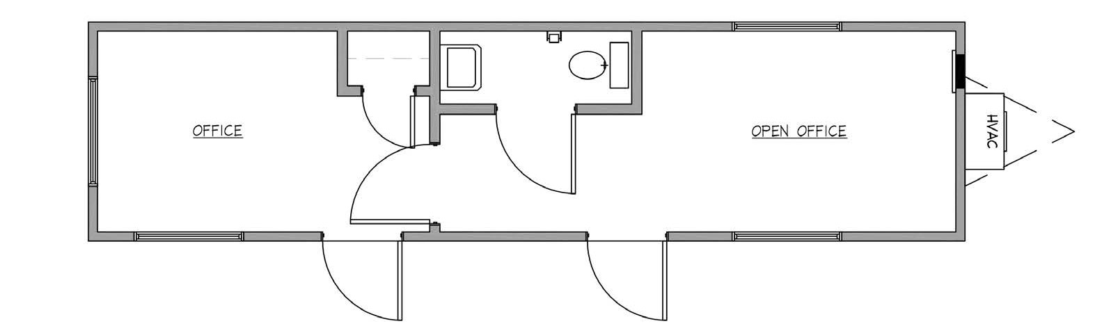
What Does a Mobile Office Include?
Staying productive on the job is easier when your workspace has everything you need to stay focused. From ramps, shelves, and desks to restrooms and data hubs, our portable office units are outfitted with advanced features that blend the comfort and practicality you need to conduct your work on-site. Every module is made with premium materials that stand up to even the most demanding environments. Take a closer look at what makes our office trailers for sale a great option for your next project:
- Insulated, energy-efficient windows
- Sturdy 29-gauge aluminum, 0.019 aluminum, or wood siding
- Functional sliding windows for ample ventilation
- Steel exterior doors to reinforce security
- Durable 1/8” vinyl floor tile for a clean, polished look
- Reliable fluorescent lighting
- Electric heating & AC systems with easy-to-use thermostats
- Units with and without restrooms
- Built-in desks with file storage cabinets

Scalable Office Trailers Built for Every Team

8’ x 32’ Office Trailer

10’ x 44’ Office Trailer




